売買物件
土地
名島一丁目土地
福岡市東区名島1丁目20ー2
価格:1,300万円
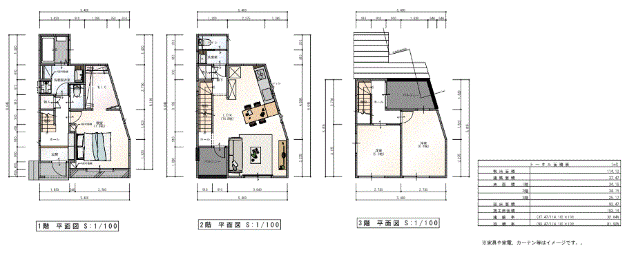
間取・配置図
地図
詳細情報
| 所在地 | 福岡市東区名島1丁目20ー2 | ||
|---|---|---|---|
| 交通 | 西鉄貝塚線名島駅 徒歩約12分 |
||
| 学校区 | 福岡市立名島小学校、福岡市立松崎中学校 | ||
| 価格 | 1,300万円 | ||
| 土地面積 | 117.09㎡ | ||
| 接道幅員 | 南側私道(位置指定道路) | ||
| 私道負担 | なし | ||
| 用途地域 | 第二種中高層住居専用地域 | ||
| 都市計画 | 市街化区域 | ||
| 建ぺい率 | 60% | 容積率 | 150% |
| 地目 | 宅地、山林 | 建築条件 | 付(株式会社ホゼナル 設計契約を含む) |
| 現状 | 古家あり | ||
| 引渡し | 解体更地渡し、時期相談 | 取引態様 | 専任媒介 |
| 法令上の制限 | 法22条制限区域、第一種15m高度地区、文化財保護法、福岡市屋外広告物条例、航空法 | ||
| 設備 | - | ||
| 備考 | - | ||
| 情報更新日 | 2026/4/28 | 次回更新予定日 | 2026/5/27 |
| 地域概要 | - | ||
- まずはお気軽にご相談を!
お問い合わせフォーム











